| Prijs | € 625.000,- k.k. |
| Type object | Appartement, portiekflat |
| Perceeloppervlakte | 990 m² |
| Woonoppervlakte | 151 m² |
| Aanvaarding | In overleg |
| Status | Verkocht |
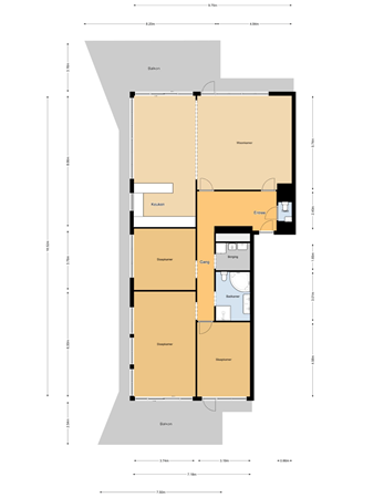
Bieden vanaf € 625.000 k.k.! LUXE wonen in een PRIVAAT SEMI-PENTHOUSE! Wie wil dat niet, een eigen penthouse. Geen bovenburen en veel leefruimte, een heerlijk balkon welke toegang krijgt middels de woonkamer aan de oostkant en de ouderslaapkamer aan de westkant (gelegen op drie zon-zijden) en een bijzonder royaal leefgedeelte. Wanneer het buiten warm is, is het binnen heerlijk koel door de fijne airconditioning. We stappen in het goed beveiligde complex de lift in naar de 6e verdieping waar we toegang krijgen tot het penthouse met o.a. drie slaapkamers. De riante hal geeft toegang tot het onlangs geplaatste hangend toilet, royale badkamer dat recent is vernieuwd, luxe keuken en fraaie eetkamer, maar ook de ouderslaapkamer, logeerkamer en werkkamer. De ouderslaapkamer en werkkamer hebben, net als de eetkeuken, toegang tot het riante terras. Het typerende aan het riante terras is dat er zowel van de ochtendzon als de avondzon genoten kan worden. De zonrichtingen zijn Noord, Oost en West. Enkele bijzonderheden: - Op loopafstand van winkelcentrum De Stadspoort - Geavanceerd ventilatiesysteem met vier standen is gesitueerd in de badkamer, toilet, berging en keuken - Ruim 150m2 woonoppervlak - Riante berging op de begane grond + in het semi-penthouse - Vlakbij snelweg A12 - Op korte afstand van intercity station Ede-Wageningen - Heel veel privacy
| Referentienummer | 00124 |
| Vraagprijs | € 625.000,- k.k. |
| Servicekosten | € 397,- |
| Inrichting | Niet gestoffeerd |
| Inrichting | Niet gemeubileerd |
| Status | Verkocht |
| Aanvaarding | In overleg |
| Aangeboden sinds | Maandag 8 december 2025 |
| Laatste wijziging | Woensdag 4 maart 2026 |
| Type object | Appartement, portiekflat |
| Woonlaag | 6e woonlaag |
| Soort bouw | Bestaande bouw |
| Toegankelijkheid | Mindervaliden Senioren |
| Bouwperiode | 1995 |
| Keurmerken | Beveiliging |
| Isolatievormen | Volledig geïsoleerd |
| Perceeloppervlakte | 990 m² |
| Woonoppervlakte | 151 m² |
| Inhoud | 422 m³ |
| Oppervlakte externe bergruimte | 10 m² |
| Oppervlakte gebouwgebonden buitenruimte | 59 m² |
| Aantal bouwlagen | 1 |
| Aantal kamers | 4 (waarvan 3 slaapkamers) |
| Aantal badkamers | 1 |
| Energielabel | B |
| Bouwjaar | 2025 |
| Combiketel | Ja |
| Eigendom | Eigendom |
| Warm water | CV-ketel |
| Verwarmingssysteem | Centrale verwarming |
| Badkamervoorzieningen | Douche Dubbele wastafel Toilet |
| Heeft kabel-tv | Ja |
| Telefoonaansluiting aanwezig | Ja |
| Heeft een jacuzzi | Ja |
| Heeft schuur/berging | Ja |
| Heeft een schuifpui | Ja |
| Ingeschreven bij de KvK | Ja |
| Jaarlijkse vergadering | Ja |
| Periodieke bijdrage | Ja |
| Reservefonds | Ja |
| Meer jaren onderhoudsplan | Ja |
| Onderhoudsverwachting | Ja |
| Opstal verzekering | Ja |
| Kadastrale aanduiding | Ede E 3991 |
| Perceeloppervlakte | 990 m² |
| Eigendomsituatie | Zie akte |